Долбежный станок, предназначенный для работы по металлу, является оборудованием, с помощью которого можно обработать труднодоступные места в металлических деталях. Основным назначением подобного оборудования, которое относится к категории узкоспециализированного, является создание элементов различного профиля, что осуществляется за счет выемки металла. Наряду с профессиональными, существуют и самодельные станки подобного типа, но принцип их работы практически не отличается.
Долбежный станок ГД-200
Особенности станков долбежного типа
И профессиональные, и самодельные долбежные станки состоят из одинаковых конструктивных элементов, которые и позволяют такому оборудованию эффективно выполнять все возложенные на него функции. Основой любого долбежного станка является станина, на которой крепятся его остальные конструктивные элементы: рабочий стол, долбяк — инструмент с острыми зубьями, кулисный механизм, коробка подач, привод, который может быть механическим, электрическим и гидравлическим.
Гидравлическим приводом оснащаются серийные долбежные станки, которые считаются профессиональным оборудованием. Работать на таком, более совершенном оборудовании, за счет наличия гидравлического привода значительно проще и удобнее. Самодельный станок для долбления металла имеет более простую конструкцию, но при этом способен успешно справляться со многими технологическими операциями.
Принцип работы долбежного станка продемонстрирован на видео:
В конструкции профессиональных долбежных станков имеется еще ряд важных элементов: охлаждающая система, системы, отвечающие за управление оборудованием и обеспечение бесперебойной работы всех узлов устройства. Гидропривод станка размещается внутри его станины, а программирование его работы при помощи специальной системы позволяет ползунку, который и совершает возвратно-поступательные движения, выполнять их по точно заданным параметрам.
Долбежный станок по металлу позволяет выполнять целый перечень технологических операций: формирование шпоночных пазов, канавок и шлицев на поверхностях как плоского, так и фасонного типа, получение вырезов и канавок в цилиндрических и конических отверстиях. Использовать такой станок можно для обработки внешних поверхностей, высота которых не превышает 320 мм, а также внутренних с глубиной не более 250 мм.
Перемещение рабочего стола данного оборудования может обеспечиваться при помощи ручной или механической передачи, а также выполняться по прямой линии или по кругу, что дает возможность выполнять на таком станке обработку зубчатых колес и других деталей из металла круглой формы. В отличие от профессионального, самодельный станок может выполнять обработку деталей только в двух плоскостях, что значительно уменьшает его функциональность.
Принцип работы долбежного станка
Обработка деталей из металла на долбежном станке осуществляется за счет возвратно-поступательного движения, которое в вертикальной плоскости совершает ползун и закрепленный в нем резец. Рабочая подача заготовки осуществляется за счет движения стола, на котором она закреплена.
Долбежный станок может работать в двух основных режимах: простом и сложном. При простом режиме заготовка из металла обрабатывается в упор, и резец, перемещаясь на требуемые расстояния, создает ряд отверстий, не отличающихся своими формами и размерами. Сложный режим предполагает обработку отверстий под углом и труднодоступных поверхностей, расположенных во внутренней части заготовок. Выполнить такие операции можно только на профессиональном оборудовании. Станок, сделанный своими руками, для них не приспособлен.
Долбежные станки, сделанные своими руками, оптимально подходят для оснащения небольших производств и частных мастерских, где с их помощью можно обрабатывать заготовки из цветных и черных металлов. Для крупных производств необходимо уже профессиональное оборудование, нередко оснащенное числовым программным управлением (ЧПУ).
Составить представление о том, как выглядят долбежные резцы для соответствующих станков, можно по фото ниже:
Резцы долбежные
Основные модели станков
Наиболее популярной и распространенной моделью долбежного станка по металлу является «ГД», которая представлена сериями 200 и 500. Более современным и функциональным является долбежный станок модели S315TGI, который также очень популярен у отечественных производителей. Такой станок, в отличие от более простых моделей и устройств, изготовленных своими руками, позволяет эффективно выполнять большой перечень технологических операций по металлу.
При выборе серийных долбежных станков нельзя просто ориентироваться на рекламные видео, следует учитывать ряд важных параметров. Одним из важнейших характеристик является максимальная высота заготовки, которую можно обрабатывать на станке. Значимыми параметрами такого станка по металлу также являются: мощность, размеры инструмента и возможность его регулировки, наличие продольного и поперечного хода, допустимый угол наклона и параметры скорости движения долбяка. При выборе такого станка также следует обращать внимание на его габариты и вес, влияющие на его устойчивость и удобство обслуживания, на комплектацию дополнительными устройствами, которые значительно увеличивают функциональность устройства.
Станок ГД-500
Делаем долбежный станок своими руками
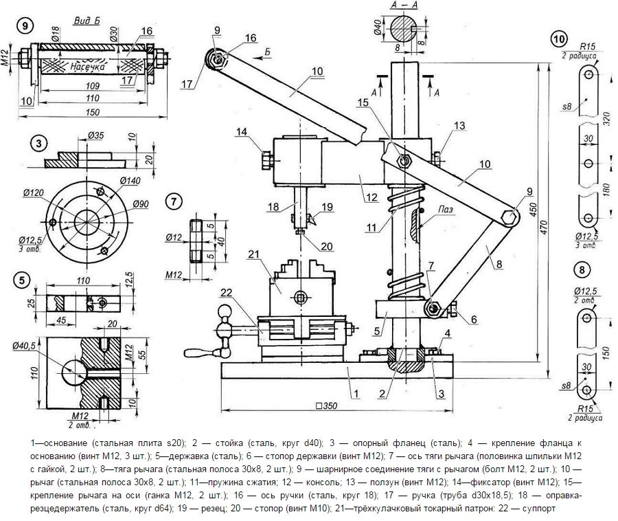
Чтобы изготовить своими руками самодельный долбежный станок, как минимум, необходим его чертеж. Любое подобное оборудование, по сути, является вертикально-строгальным станком с ручным приводом. Все конструктивные элементы такого станка размещаются на массивном основании (350х350х20 мм), которое одновременно является и его рабочим столом.
На основании такого самодельного станка фиксируется стойка, изготовленная из стального стержня диаметром 40 мм и высотой 450–500 мм. По всей высоте стойки прорезан продольный паз, а на одном из его концов выполнена проточка, которая необходима для его соединения с фланцем. Такой фланец, который представляет собой массивную шайбу с одним центральным отверстием и тремя крепежными, расположенными по его окружности, необходим для обеспечения надежного крепления стойки к основанию. Стойка вставляется во фланец своим проточенным концом и надежно фиксируется в нем при помощи сварного соединения, а сам фланец крепится к основанию станка при помощи резьбового соединения.
Чертежи ручного долбежного станка, с помощью которого можно прорезать шлицы и пазы:
Самодельный долбежный станок
На консоль насаживаются державка и консоль, между которыми устанавливается пружина сжатия. Достаточно сложным устройством является консоль, конструкция которой состоит из двух полых цилиндров: оправочного и стоечного, при помощи сварки соединенных перемычкой (квадратная труба сечением 60х60х2,5). В каждом из цилиндров делается отверстие с резьбой М12, которые необходимы для фиксирующего винта, удерживающего консоль от проворачивания (в стоечном цилиндре) и для установки стопорного винта в оправочном цилиндре. С двух противоположных сторон стоечного цилиндра необходимо приварить оси для рычагов подачи инструмента, которые изготавливаются из полушпилек или винтов с резьбой М12.
Сами рычаги и тяги такого самодельного долбежного станка изготавливаются из стальной полосы с размерами 30х8 мм. Скрепленные между собой шарнирно болтами-осями, рычаги и тяги надеваются на оси оправочного цилиндра и державки.
Следует сразу отметить, что на долбежном станке, изготовленном своими руками, за один проход можно осуществлять обработку детали из металла на глубину 0,2–0,3 мм.
Отдельно стоит рассказать о суппорте такого станка, который внешне напоминает машинные тиски. Заготовки из металла, которые предстоит обрабатывать, крепятся в трехкулачковом токарном патроне, смонтированном на верхней подвижной площадке суппорта. С помощью такого суппорта, который надежен и прост в эксплуатации, обеспечивается подача заготовки по отношению к режущему инструменту на глубину обработки.
Пример еще одной самоделки, сделанной собственными силами:
На видео ниже представлен вариант самодельного долбежного станка с электроприводом:






